Descrizione
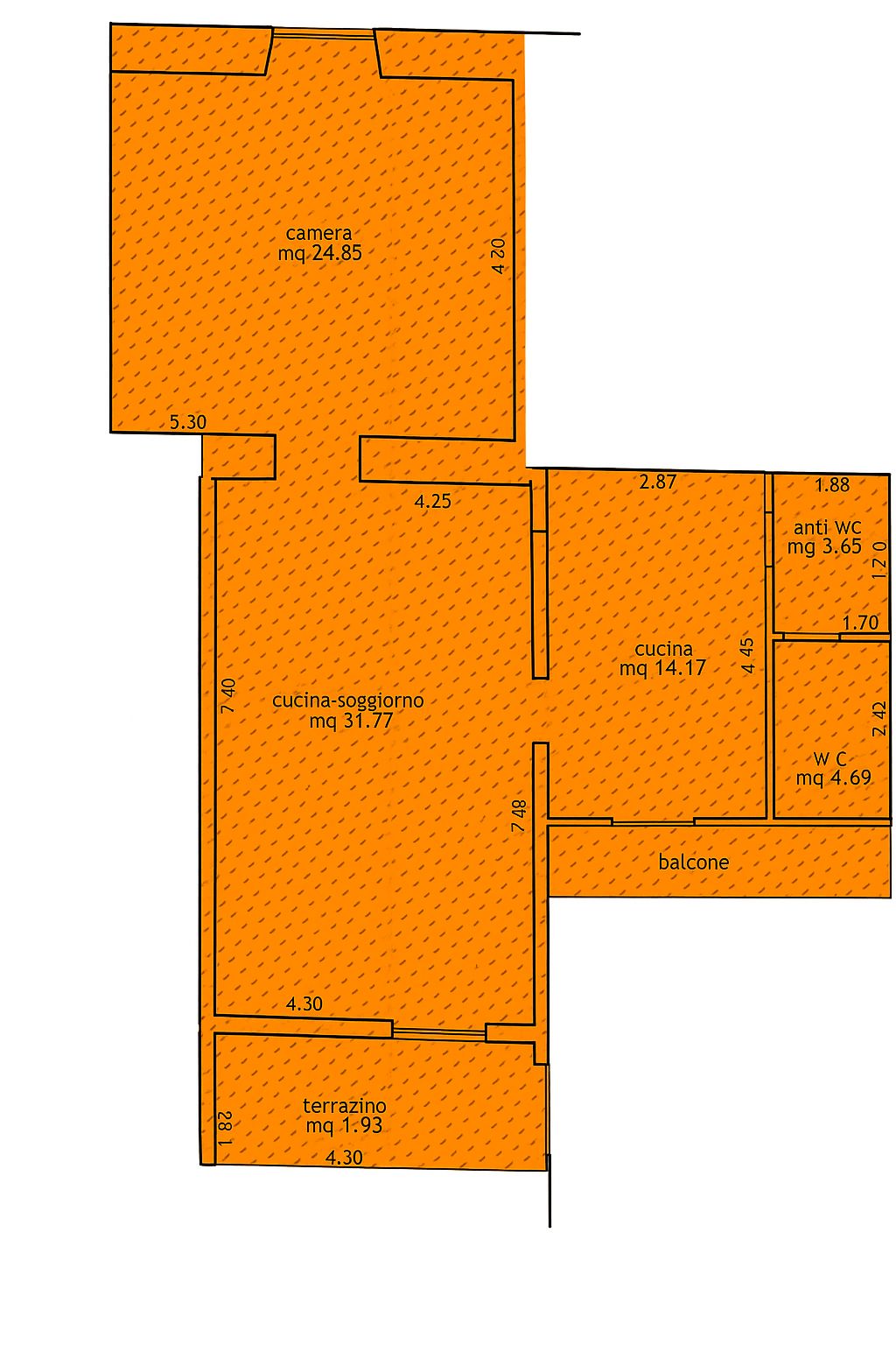
Pachino – Appartamento piazza Vittorio Emanuele. Proponiamo a Pachino, in Corso Nunzio Costa all’angolo con Piazza Vittorio Emanuele, la vendita di un interessante appartamento da ristrutturare di circa 80 mq, situato al primo piano di un stabile. L’immobile si compone di un ingresso che dà accesso a un soggiorno luminoso, una cucina abitabile, una camera da letto, un bagno e un piccolo soppalco che può essere utilizzato come spazio aggiuntivo o deposito.
L’appartamento gode di una splendida vista sulla suggestiva Piazza Vittorio Emanuele attraverso un balcone, mentre le finestre affacciano sul cortile interno, garantendo tranquillità e privacy. Questa opportunità rappresenta un ottimo investimento, poiché il rifacimento e il miglioramento della piazza contribuiranno ad aumentare il valore dell’immobile nel tempo.
Non esitare a contattarci per ulteriori informazioni o per fissare una visita.
Caratteristiche
Planimetrie




















